Host & Stay - Chatsworth Townhouse II
Preview only — see all hotel photos
See all 38 photos 1 /
38
9.6
5 anmeldelser
Best options for your travel dates
Vis hotel på kort
Host & Stay - Chatsworth Townhouse II
Host & Stay - Chatsworth Townhouse II ligger 12 minutters gang fra Cumbria County Council og 13 minutters gang fra Carlisle Katedral. Villaen tilbyder værelser med en terrasse, en sofa og et skrivebord.
Gæsterne vil finde pizzeria Ristorante Adriano inden for 7 minutter gåtur. Du kan komme til Walby Farm Park om få minutter i bil.
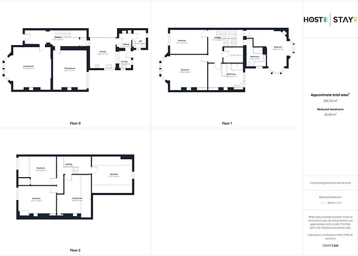
Host & Stay - Chatsworth Townhouse II ejer 2 soveværelser. Villaen består af 2 badeværelser.
Villaen har et fuldt udstyret køkken til selvforplejning. Den lokale Cricket Club busstation ligger 10 minutters gåtur væk.
Mere +
Mindre -
Vent venligst, vi tjekker tilgængelige værelser til dig.
Vi søger hoteller
Faciliteter
Hovedfunktioner
- Kæledyr ikke tilladt
Faciliteter
General:
- Rygning forbudt på alle fælles- og privatområder
- Parkering
- Privat ind-/ udtjekning
- Kæledyr ikke tilladt
- Røgdetektorer
- Brandslukkere
- Nøgleadgang
Sport og Fritid:
- Have
Bekvemmeligheder på værelset:
- Varme
Politik
Indtjekning: fra 16:00 indtil 23:59
Udtjekning: indtil 10:00
Kort
Lokale seværdigheder
Vartegn
- Carlisle Castle (950 m)
Lufthavne
- Carlisle Lufthavn (14 km)
Togstationer
- Carlisle Railway Station (700 m)
Anmeldelser
Skriv anmeldelse
100% Verificerede anmeldelser
9.6 /10